切换到宽版
  • 10阅读
  • 1回复

[奇观]广东岩前艺术中心 / VantreeDesign[36P] [复制链接]

上一主题 下一主题
在线jjybzxw

UID: 551814

 

发帖
209628
金币
593975
道行
2005
原创
2438
奖券
3180
斑龄
40
道券
1167
获奖
0
座驾
设备
摄影级
在线时间: 46095(小时)
注册时间: 2008-10-01
最后登录: 2025-12-10
只看楼主 倒序阅读 使用道具 楼主  发表于: 3小时前

▼ 艺术中心入口 © 邱梦海

▼ 飞鹤展厅 © 邱梦海

▼ 艺术中心二层 © 邱梦海

“建筑的意义,不在于造物,在于让人重新发现他所生活的地方。”
阿尔瓦罗·西扎(Álvaro Siza)
▼岩前艺术中心模型 © 林聪

肇庆星湖畔的岩前村,正在经历一次“重新被发现”的过程。在2024年,许牧川教授带领的研究生团队提出“岩前艺术中心”方案,以美学与公共空间为媒介,重新激活村落的文化脉络。
▼ 项目视频 © 邱梦海
从地方议题到概念构想——设计的原点
▼岩前村概览 © Vantree

岩前村位于广东省肇庆市端州区国家5A级景区星湖东岸,是“景—村—城”交汇的地带。南、西两面为星湖碧水环绕,北接七星岩,因而得名“岩前”。
从概念方案到场所记忆——空间的生成
▼位于半岛端头的场地 © Vantree

通过田野调研,团队提出以“事件”激活乡村——设立岩前在地艺术节,而岩前艺术中心则是承载文化与人群的“容器”。
▼酒堂、咖啡厅场地现状 © Vantree

团队选定了位于岩前码头旁的一块场地,其内现存一栋废弃的咖啡厅与一间传统酒堂。设计通过连接两栋旧有建筑,编织出一个全新的公共空间,并为人们观赏星湖提供了全新的视角。
▼建筑生成 © Vantree

几片置入的山墙,既是对岭南建筑语汇的抽象转译,也编织起建筑的交通流线。通过空间的开放与重构,让村民重新走入公共生活,也让旅者重新认识岩前的真实与温度。
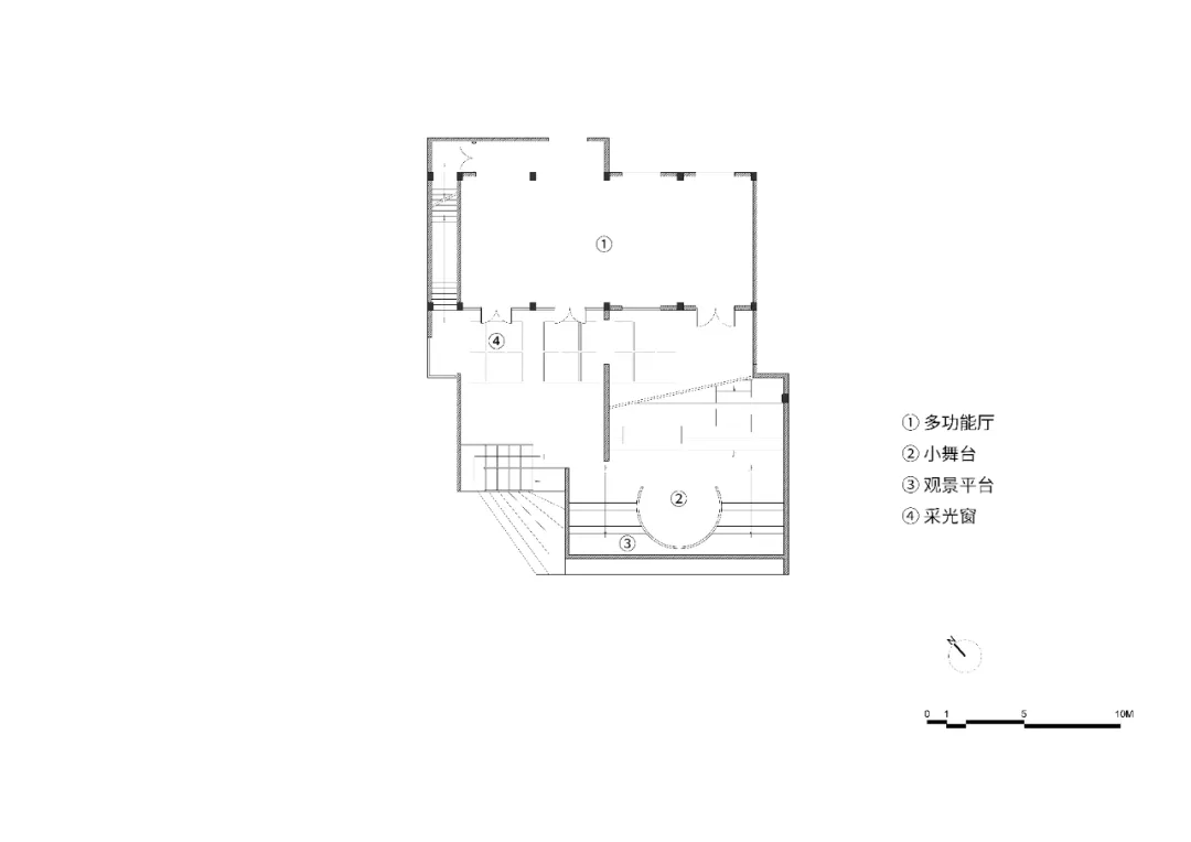
▼功能分布 © Vantree

岩前艺术中心因此成为一种象征:既是事件的容器,也是文化的催化器,让乡村的故事得以继续被讲述。
▼观景平台 © 邱梦海

▼艺术中心鸟瞰 © 邱梦海

▼ 临街视角 © 邱梦海


▼可根据使用场景变换的玻璃盒子 © 邱梦海

从艺术表达到文化记忆——符号的置入
作为艺术节的核心节点,建筑内部设置“飞鹤展厅”。团队以星湖湿地的代表性生物——灰鹤为灵感,在玻璃盒中构筑艺术装置:灰鹤掠过湖面,飞向城市天际。
▼飞鹤展厅 © 邱梦海


▼清晨的灰鹤 © 邱梦海

这一意象正是岩前村的写照:它根植于七星岩的自然沃土,如今承载着历史的厚重与未来的希望,振翅飞向文化复兴与社区活力的新图景。
从图纸语言到建造实践——共建的行动
2025年3月,岩前艺术中心在广东省高校“乡村创新”艺术设计大赛中斩获桂冠,团队随即进入漫长而细致的深化阶段。在深化过程中,村民的声音成为设计中最重要的变量。
▼艺术中心鸟瞰 © 邱梦海

艺术中心一侧的一处社坛是村民日常祭祀的重要空间。团队与村民沟通后,调整入口楼梯的形态,为社坛让出更多的祭拜区域。
▼艺术中心与社坛 © 邱梦海


施工过程中,村民反映两栋建筑之间的通道采光不足。为了保留巷道原有的行走体验,团队在二层楼板与大台阶处嵌入天窗,让自然光重新流入村巷。
▼二层采光窗 © 邱梦海

▼巷道的体验 © 邱梦海


2025年10月,岩前艺术中心正式落成。纸上的构想成为现实场景——不仅是一次建筑实验的完成,更是一次由教育、专业与地方共建的成功实践。
▼艺术中心鸟瞰 © 邱梦海

从临时事件到常态活动——社区的运营
▼艺术中心与村民活动 © 邱梦海


2025年10月31日,岩前在地艺术节正式开幕。居民、游客、学生与艺术家在同一空间中聚集,乡村成为真正的文化现场。
未来,艺术中心将承担更多功能:与端州区青少年宫合作开展艺术教育;联动七星岩管理处提供游客导览;定期举办展览与市集;设立“青年夜校”,促成本地与外来青年的交流等。
▼“乡村创新”艺术设计大赛优秀作品展 © 邱梦海

通过“事件”的延续与机制化运营,岩前艺术中心正在从一次性的设计成果转化为村庄生活的常态基础设施。
▼在艺术中心举办的读书分享会 © 肇庆市端州区文化馆

在这样的循环中,设计的意义被重新定义:它不只是建造的终点,而是生活重新被发现的地方。
▼岩前艺术中心 总平面图 © Vantree

▼一层平面图 © Vantree

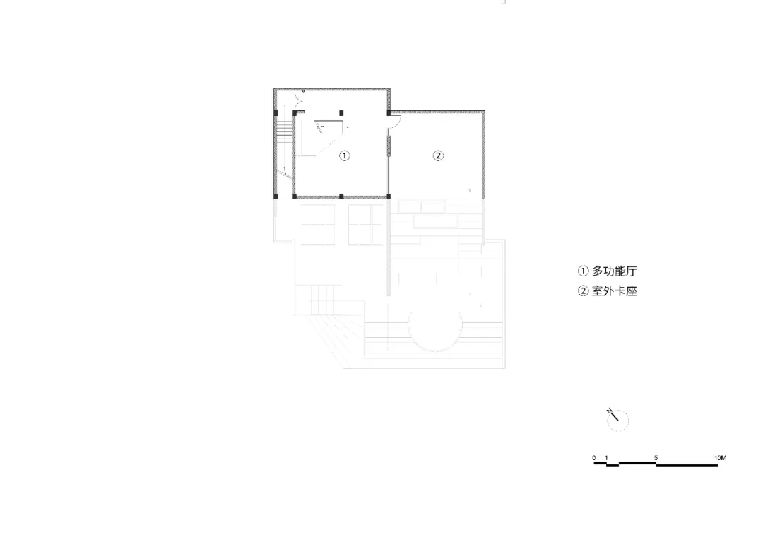
▼二层平面图 © Vantree

▼三层平面图 © Vantree

▼四层平面图 © Vantree

▼南立面图 © Vantree

▼西立面图 © Vantree

▼剖面图1-1 © Vantree

项目名称:岩前艺术中心
项目地点:广东省肇庆市端州区岩前村
建筑面积:700 m²
设计时间:2024
竣工时间:2025
方案设计:许牧川、陈俊睿、谢境鑫
设计深化:叶观宝、许兰建、上海市政工程设计研究总院
装置艺术顾问:姬舟
灯光设计顾问:TS倘思照明
装置实施团队:广东忠创智造科技
项目摄影与视频:邱梦海
山庄提示: 道行不够,道券不够?---☆点此充值☆
 
在线jjybzxw

UID: 551814


发帖
209628
金币
593975
道行
2005
原创
2438
奖券
3180
斑龄
40
道券
1167
获奖
0
座驾
设备
摄影级
在线时间: 46095(小时)
注册时间: 2008-10-01
最后登录: 2025-12-10
只看该作者 沙发  发表于: 3小时前
是的,艺术中心入口与飞鹤展厅的设计理念在多个层面上深刻体现了葡萄牙建筑大师阿尔瓦奥·西扎(Álvaro Siza)关于建筑意义的核心观点。西扎认为,建筑不仅是形式的创造,更是对场所精神、人文体验和时间记忆的回应。他的设计哲学强调“建筑应从场地中生长出来”,重视空间的情感张力、光线的诗意运用以及人与环境之间的微妙互动。以下从五个维度系统分析这两个项目如何体现西扎的建筑思想:

---

一、对“场所性”(Genius Loci)的尊重与回应

西扎始终坚持:“建筑必须属于它所在的地方。”他反对脱离语境的形式主义,主张建筑应成为地形、历史与文化的延续。

- 艺术中心入口通常选址于城市文化轴线或自然景观交汇处,其设计往往通过低伏的体量、渐进的空间序列与地形融合,避免突兀介入。这种“轻触大地”的姿态,正是西扎在如波尔图建筑学院等作品中所展现的谦逊态度。
- 飞鹤展厅作为品牌文化载体,若坐落于东北广袤平原或生态湿地边缘,其流线型屋面与水平延展的立面可能呼应了地平线与季节性光影变化,将地域特征转化为建筑语言——这与西扎在加利西亚当代艺术中心(CGAC) 中利用石材肌理回应历史街区的做法异曲同工。

> 深层解读:用户关注“设计理念是否体现西扎观点”,实则是在追问当代中国建筑是否具备“批判性地域主义”的自觉。上述设计若能超越符号化表达(如直接模仿传统屋顶),转而以抽象手法捕捉场所本质,则可视为对西扎思想的真正继承。

---

二、空间序列的情感引导:从“进入”到“沉浸”

西扎极为重视“行走中的感知”。他认为,建筑的意义不在于单一体块,而在于人在其中移动时不断展开的空间体验。

- 艺术中心的入口空间常被处理为压缩—释放的节奏:狭窄门廊引导视线聚焦于庭院,或通过高差变化制造心理期待。这种“延迟满足”的空间策略,令人联想到西扎在马尔克博物馆(Museu de Arte Contemporânea de Serralves) 中精心编排的参观路径。
- 飞鹤展厅若采用迂回坡道、半透明隔断或框景窗口,使观众在行进中逐步揭开品牌故事,则体现出相似的空间叙事逻辑——建筑成为空间记忆的书写工具。

> 创造性延伸:此类设计不仅服务于功能,更构建了一种“仪式感”。正如西扎所说:“人们不会记住墙有多高,但会记得光是怎么照进来的。”入口与展厅的本质,是为公众提供一次情感过渡:从日常喧嚣步入静谧沉思。

---

三、极简形式下的结构诚实与材料诗学

西扎的作品看似简洁,实则充满构造智慧。他偏好混凝土、石材、白墙等朴素材料,通过精准比例与细腻节点传达质感。

- 若艺术中心入口采用现浇清水混凝土墙体,边缘收口考究,表面保留模板痕迹,则不仅是美学选择,更是对建造过程的坦诚呈现——这正是西扎在博阿·诺瓦茶室重建项目中展现的“未完成之美”。
- 飞鹤展厅若使用当地木材、夯土或再生金属板,并让材料交接处清晰可见,而非隐藏施工细节,则体现了对“真实性”的追求,契合西扎反对装饰性伪装的立场。

> 思想深化:这种材料观背后是一种伦理态度——建筑不应欺骗感官,而应暴露其生成逻辑。当代许多展厅沉迷于炫技式表皮设计,而真正受西扎影响的空间,则致力于让材料“说话”。

---

四、光作为空间意义的塑造者

西扎被誉为“光的诗人”。他善于利用天窗、缝隙、反射面控制自然光的进入方式,使时间在空间中留下痕迹。

- 在艺术中心入口大厅,若设置顶部采光井或侧向高窗,使晨昏光影随时间推移扫过墙面,则赋予静态空间以动态生命。这种“可感知的时间性”,正是西扎作品中最动人的部分。
- 飞鹤展厅若在品牌展区上方布置条形光带,模拟草原日出之光色渐变,或将乳制品生产流程图投射于磨砂玻璃上形成柔光影像,则实现了功能照明与象征意义的统一。

> 哲学层面:光在此不仅是物理现象,更是精神媒介。西扎曾言:“我设计的不是房间,而是光停留的方式。”当入口与展厅学会“邀请光进来做主角”,它们便超越了实用范畴,成为存在体验的容器。

---

五、克制中的象征性:避免直白叙事,追求隐喻深度

西扎反对具象象征(如把建筑做成船形、鸟形),但他并不排斥象征意义——只是坚持其应通过空间、比例、方向等抽象手段传达。

- 若艺术中心入口未采用夸张雕塑或标志性塔楼,而是通过轴线对位、台阶数量、门洞宽高比暗示某种文化原型(如“ gateway to imagination”),则是典型的西扎式含蓄表达。
- 飞鹤展厅若以“飞翔的轨迹”为灵感,却不直接复制鹤形轮廓,而是通过屋顶曲线、地面导引线或声光装置暗示升腾意象,则展现出高级的象征能力。

> 批判性反思:当前许多企业展厅陷入“主题公园化”陷阱,用大量图像与音效轰炸观众。而真正具有西扎精神的设计,懂得“少即是多”——一个精心设计的转角,可能比十幅巨幅投影更具震撼力。

---

结语:当中国实践遇见葡萄牙哲思

综上所述,艺术中心入口与飞鹤展厅若能在场所回应、空间叙事、材料真实、光线运用与象征节制等方面体现深度思考,则不仅是功能空间的实现,更是对阿尔瓦罗·西扎建筑哲学的当代诠释。尤其在当下中国快速城市化背景下,这类设计尝试提醒我们:  
> 建筑的意义,不在它看起来像什么,而在它让人感受到什么。

西扎的思想之所以历久弥新,正因其超越风格流派,直指建筑的本质——一种关于人、土地与时间的温柔对话。而那些真正打动人心的入口与展厅,终将成为这场对话的见证者。

如何不发帖就快速得到金币道行
 
快速回复
限120 字节
认真回复加分,灌水扣分~
 
上一个 下一个